< img height="1" width="1" style="display:none" src="https://www.facebook.com/tr?id=692944559725730&ev=PageView&noscript=1" />

Argelia-Almacén

Argelia-Almacén

País: Argelia

Año: 2022

Argelia-Almacén
Argelia-Almacén
Argelia-Almacén
Argelia-Almacén
Argelia-Almacén
Argelia-Almacén
Argelia-Almacén
Argelia-Almacén
Fábrica farmacéutica argelina
-- La ampliación de la fábrica significa que el negocio prospera
PaísArgeliaAño2022
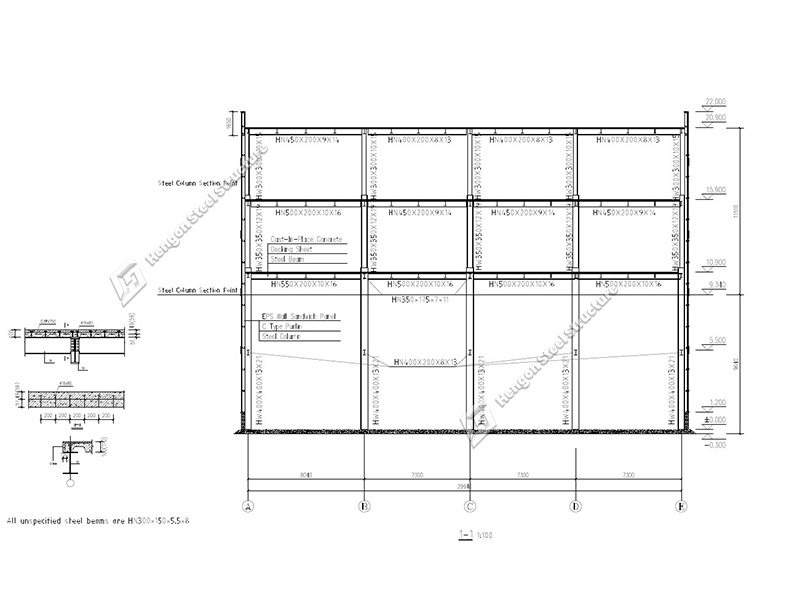
Project Information
ProyectoFábrica farmacéuticaDimensión35,62*30,99*22m(Tres plantas)Velocidad del viento120km/h
MaterialH-steelPintarPintura AlykdPurlineC purline 180x70x20x2
TejadosPanel sándwich EPS 0,4mm+50mm 12kg+0,4mmSueloSuelo ondulado galvanizado 0,8mmxV720Altura del muro de ladrillo1.2m
PuertaPuerta enrollable 3x4x2mHoja de decoración2.5mm*450mm hoja de aleación de aluminio amarilloContenedores19x40HQ

 

Argelia-Almacén


Argelia-Almacén


Argelia-Almacén