< img height="1" width="1" style="display:none" src="https://www.facebook.com/tr?id=692944559725730&ev=PageView&noscript=1" />

Taller de Argelia

Taller de Argelia

País: Argelia

Año: 2019

Taller de Argelia
Taller de Argelia
Taller de Argelia
Taller de Argelia
Taller de Argelia
Taller de Argelia
Taller de Argelia
Taller de Argelia
Taller de Argelia
PaísArgeliaAño2019
Project Information
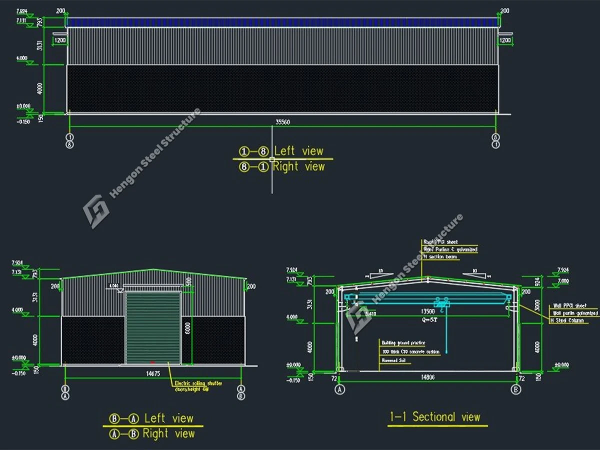
ProyectoEdificios prefabricadosDimensión36x15x7(con grúa puente de 5T)Velocidad del viento29m/s
MaterialAcero H soldadoPintarPintura AlykdPurlineC purline
160x60x20x2
AnclaM20*800Contenedores2x40HQ contenedor de barco
TechoChapas onduladas de acero V840 0,4 mm
ParedChapas onduladas de acero V900 0,4 mm
PuertaPuerta eléctrica enrollable 4,5mx6mx2, con tejadillo prefabricado
PernosPernos de alta resistencia para la unión de pilares y vigas;
Pernos Commen para la unión de correas;
Tornillos autorroscantes para la unión de chapas individuales;
Remaches para la unión de remates
Imágenes del proyecto

 

Taller de Argelia


Taller de Argelia


Taller de Argelia