< img height="1" width="1" style="display:none" src="https://www.facebook.com/tr?id=692944559725730&ev=PageView&noscript=1" />

Marruecos-Taller

Marruecos-Taller

País: Marruecos

Año: 2020

Marruecos-Taller
Marruecos-Taller
Marruecos-Taller
Marruecos-Taller
Marruecos-Taller
Marruecos-Taller
Marruecos-Taller
Marruecos-Taller
Taller de Marruecos
--Solo dos tornilos anclados por columna en el workshop con grúa de 5T
PaísMarruecosAño2020
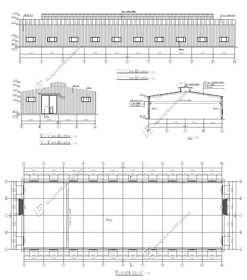
Información del Proyecto
ProyectoTaller de estructuras de aceroDimensión70*24*7m (con ventana al cielo)Velocidad del viento29m/s
MaterialH-steelPinturaAlykd paintPurlineC purline
160x60x20x2
TechumbreEPS sandwich panel (0.47mm+50mm 12kg+0.37mm)+1mm sky light sheetWallhojas de acero onduladas V900 0.5mmventanaAluminio aleación
ventana deslizante, 1mm marco+0.5mm vidrio templado 3mx1.5mx24
PuertaPanasonic
puerta deslizante 5mx6mx2
  Contenedores6x40HQ

 

Marruecos-Taller


Marruecos-Taller