-La ampliación de la fábrica significa que la empresa prospera
Durante la pandemia, los productos farmacéuticos de este cliente se desarrollaron rápidamente y necesitaban aumentar urgentemente la producción, por lo que planearon construir un nuevo taller.
| Fábrica farmacéutica argelina La expansión de la fábrica implica que el negocio está prosperando | |||||
| País | Algeria | Año | 2022 | ||
| Información del Proyecto | |||||
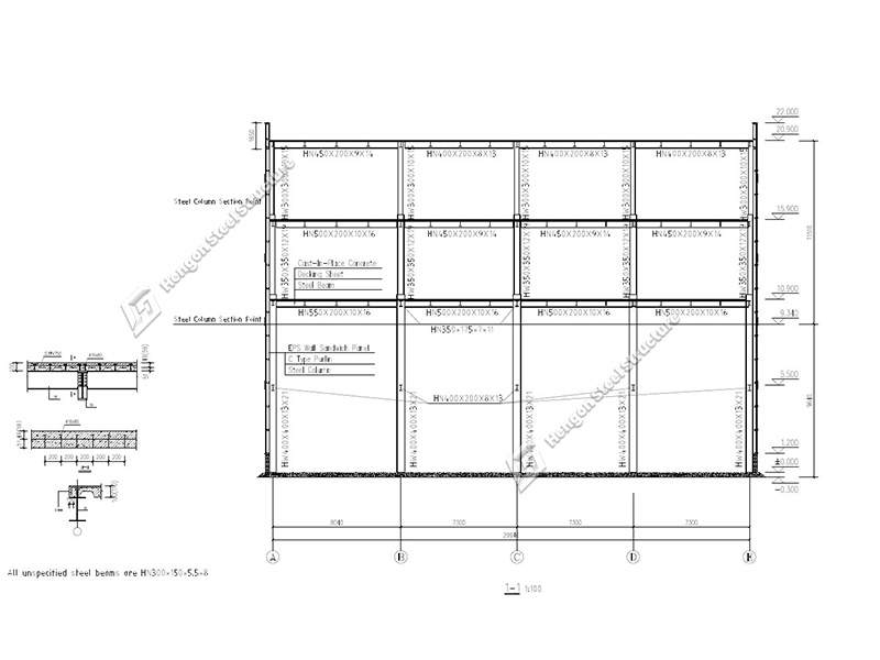
| Proyecto | Fábrica farmacéutica con estructura de acero | Dimensión | 35.62*30.99*22m (Tres pisos) | Velocidad del viento | 120km/h |
| Material | H-steel | Pintura | Alykd paint | Purline | C purline 180x70x20x2 |
| Techumbre | Panel sándwich EPS 0,4mm+50mm 12kg+0,4mm | Piso | Suelo ondulado galvanizado 0.8mmxV720 | Altura de la pared de ladrillos | 1.2m |
| Puerta | Puerta deslizante 3x4x2m | Hoja de decoración | 2.5mm*450mm hoja de aleación de aluminio amarillo | Contenedores | 19x40HQ |
La primera planta tiene 10,9 m de altura y sirve principalmente de taller de producción con equipos altos. Las plantas segunda y tercera están destinadas a zonas de almacenamiento y operaciones manuales.

Este cliente se centra especialmente en la estética del edificio y solicita bandas divisorias de aleación de aluminio marrón en los puntos de separación de cada planta. Encontramos un proveedor especializado para que se lo personalizara.

Desde el principio, este cliente nos proporcionó dibujos preliminares, lo que nos permitió confirmar algunas cuestiones sencillas para el presupuesto y el diseño, lo que mejoró enormemente la eficacia de la comunicación.

Al cabo de dos años, en 2024, este cliente vino a China para discutir con nosotros cara a cara su nuevo proyecto de fábrica farmacéutica con estructura de acero y nos trajo aperitivos locales. Nos dijo que la industria farmacéutica en Argelia está experimentando una tendencia al alza. Apreciamos su consideración y confianza, y seguiremos satisfaciendo sus expectativas proporcionándoles mejor calidad y servicio.
