--Establecer la colaboración, Amigos de toda la vida
En 2024, tras la pandemia, por fin llegaron clientes a China. Mencionaron las Container House que habíamos suministrado anteriormente, elogiaron su calidad y dijeron que seguían utilizándose. También hablaron de la posibilidad de futuras colaboraciones en proyectos como gasolineras e instalaciones públicas de apoyo.

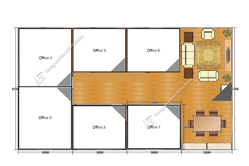
En 2019, este cliente ordenó 3x40ft montado casa contenedor , con un área total de 78m² para ser oficina. También pidieron cinco conjuntos prefabricados casa de guardia, tamaño:1.5mx1.5m.
| Casa contenedor Flat Pack Bahrain --Establecer la colaboración, Amigos de toda la vida | |||||
| País | Bahréin | Año | 2019 | ||
| Project Information | |||||
| Proyecto | 3x40ft contenedor plano oficina + prefabricado casa de guardia y choza | Dimensión | 11.8mx6.75mxH3+1.5mx1.5mxH2.4mx5 | Estructura | Galvanizado |
| Pared | Panel sándwich EPS 50&75mm | Habitaciones | Oficina: 6 particiones Caseta: 1 partición | Suelo | Suelos autoadhesivos de PVC |
| Electricidad | Prefabricados | Puerta | Puerta de seguridad de acero 930*2000 | Contenedores | 1x40HQ |
Inicialmente, este cliente vio nuestro producto 3D pic en nuestra tienda alibaba y quería usarlo como oficina. Después de discutir los detalles y la comprensión del producto, este cliente nos envió un boceto.

Nuestro equipo de ingenieros procedió entonces al diseño. Tras recibir el dibujo, quedaron muy satisfechos, no sólo con nuestro diseño, sino también con el precio. Inmediatamente hicieron el pedido.

20 días después, entregamos los productos según lo previsto.

Tras recibir los productos, el cliente nos envió fotos de la descarga en la obra.

Comentarios de los clientes Imágenes
