-El cliente respondió:Nos encanta. Es muy bonito
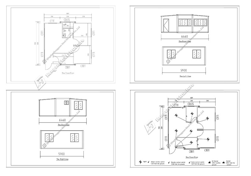
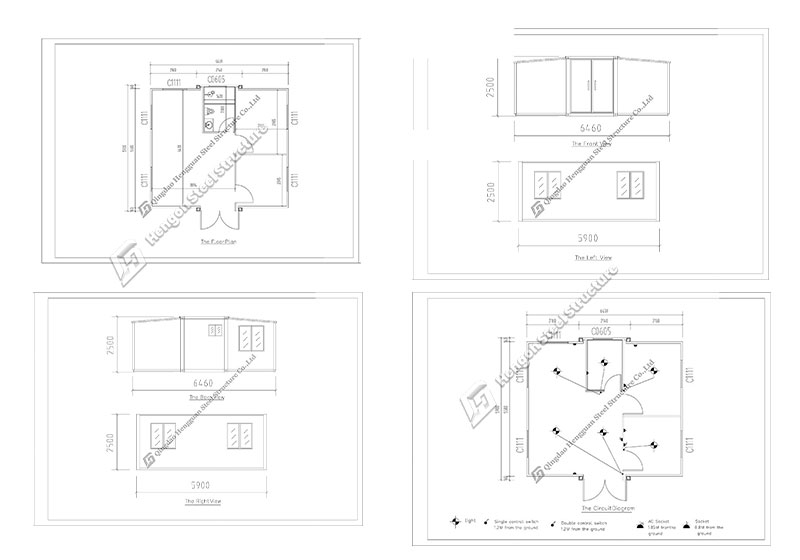
Este cliente encargó dos unidades de casa plegable de 20 pies: una para dormitorio de empleados y otra para oficina. El cliente quería un tabique de seguridad, así que añadimos un tabique interior y una ventana grande a petición del cliente.




Este cliente nos había encargado un almacén de cemento y descubrió nuestras casas extensibles a través de nuestro mensaje de WhatsApp. Impresionados por nuestro servicio y calidad, confirmaron rápidamente este nuevo pedido tras discutir los detalles.
| Project Cases | |||||
| Country | USA | Year | 2024 | ||
| Project Information | |||||
| Project | 20ft Foldable House Office&Dormitory | Dimension | 6.46mx5.9mxH2.5m | Structure | Galvanized |
| Wall | EPS sandwich panel 50mm | Rooms | Dormitory: 2 bedrooms Office: 3 partitions | Bathroom | Prefabricated |
| Floor | 1.6mm PVC ceramic tile for bathroom | Kitchen | Prefabricated | Electricity | Prefabricated USA standard |
| Door | Aluminum Thermal Break Tempered Glass Door 1820*2260 | Window | Aluminum Thermal Break Tempered Glass window:930*1100, 1800*1100 | Containers | 1x40HQ |
Este cliente eligió el blanco grisáceo para el aspecto de la casa. Las ventanas y puertas acristaladas utilizan rotura de puente térmico de aluminio con doble acristalamiento templado para mejorar el aislamiento y la resistencia al viento.


Realizamos el envío en el plazo previsto de 15 días.

Este cliente quedó muy satisfecho tras la instalación y nos dio una crítica de 5 estrellas.

