---- Trabajador comprador indio, la mejor calidad y producto para el cliente
Estructura de acero prefabricada cuadrada galvanizada en caliente
En un año, este cliente nos encargó 2 edificios de oficinas, 1 almacén, 2 supermercados, 10 aseos y 12 dormitorios para el personal. Estos pedidos se realizaron en tres lotes, todos ellos con estructuras prefabricadas de acero de tubo cuadrado galvanizado en caliente. Este artículo se centra en uno de los edificios de oficinas.
| Nigeria estructura prefabricada oficina ---- Trabajador comprador indio, la mejor calidad y producto para clientcrane | |||||
| País | Nigeria | Año | 2018 | ||
| Project Information | |||||
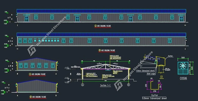
| Proyecto | Oficina de estructuras metálicas prefabricadas | Dimensión | 65*15*3.3m | ||
| Material | Q235B Tubo cuadrado galvanizado en caliente,160g | Purline | Tubo cuadrado 80x40x2,0, | ||
| Techo | Panel sándwich EPS V970 0,7mm+75mm 18kg+0,37mm) | Pared | Panel sándwich EPS V950 0,5mm+75mm 18kg+0,5mm | Ventana | Ventana corredera de aleación de aluminio , marco de 1mm+vidrio templado de 0,5mm 1,2mx1,2mx26;Ventana de persiana:0,5mx0,6mx8 |
| Puerta | Puerta de seguridad de acero | Drenaje de tejados | Canalón galvanizado de 0,8 mm + bajante de 110 pvc | Contenedores | 5x40HQ |
Este cliente era ingeniero y valora el diseño y la calidad tanto como el precio. Antes de confirmar este proyecto, pasó una semana en nuestra fábrica para ultimar el diseño. Después de que nuestro equipo de ingenieros hiciera los ajustes, revisó y propuso optimizaciones hasta que quedó plenamente satisfecho. Invitamos a estos clientes tan dedicados a visitar nuestra fábrica para hablar del proyecto, ya que una preparación minuciosa es clave para garantizar una ejecución del proyecto sin contratiempos.

Durante la producción, este cliente visitó nuestra fábrica dos veces para hacer un seguimiento del progreso e inspeccionar al azar la calidad del producto. Comprobó elementos como las dimensiones de los componentes de la estructura de acero, el grosor, el revestimiento de zinc, el grosor del panel sándwich y la densidad. El grosor y la densidad del panel sándwich, todo ello según los requisitos del presupuesto. El cliente quedó satisfecho con nuestra calidad y nos dio el visto bueno, diciendo que podía informar con confianza a su cliente directo.

Es indio y tiene una empresa comercial registrada en Dubai. Ayuda a clientes africanos a buscar proveedores en todo el mundo y se encarga de la ejecución de los proyectos.

Durante el envío, este cliente se quedó en nuestro taller para supervisar el proceso de carga, quedándose incluso hasta las 11 de la noche. Con más de 60 años, su dedicación nos impresionó profundamente, al igual que su profesionalidad. No es de extrañar que sus clientes directos confíen en él y le encarguen el trabajo de aprovisionamiento de un proyecto tan importante.

Para este proyecto, asignamos un ingeniero para guiar la instalación, nuestro ingeniero pasó 52 días in situ en Nigeria. La asignación de nuestro ingeniero es un servicio de pago, y el visado, el billete de avión de ida y vuelta y el alojamiento local también se cobran. Sin embargo, garantizar que el proyecto se complete en la fecha prevista ayuda a evitar pérdidas mayores.
