--Enfoque en el clima caluroso local, las fuertes lluvias y la alta corrosión.
| Casos del proyecto | |||||
| País | Iloilo Philippines | Año | 2024 | ||
| Información del proyecto | |||||
| Proyecto | Estructura de acero Almacén | Dimensión | 39.4mx22.4mx8m | Velocidad del viento | 250km/h |
| Material | H-steel | Pintar | Pintura Alykd | Purline | Purina C 180mmx70mmx20mmx2mm |
| Tejados | chapas onduladas de acero para techos V840 0.5mm,EPE espuma 12mm con alambre de acero inoxidable de apoyo | Altura del ladrillo | Pared de ladrillo | ||
| Puerta | Puerta de acero galvanizado | Canalón | SS304 1.5mm | Contenedores | 2x40HQ |
| Imágenes del proyecto | |||||
![]() | |||||
Debido al clima cálido y lluvioso de Filipinas, recomendamos al cliente que añada espuma aislante EPE de 12 mm al tejado. Y hay 1.2mm 304 red de alambre inoxidable para apoyar, entonces es más hermoso y duradero después de la instalación.


También hemos diseñado un gran canalón de acero inoxidable 304 de 1,22 m de ancho para resistir las fuertes lluvias. Y como la alta corrosión a un lado la zona costera, el cliente requiere 1,5 mm de espesor.

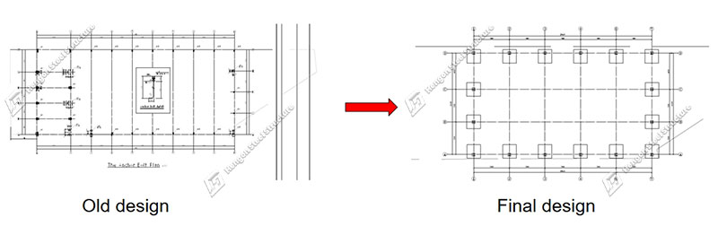
Inicialmente, el cliente sólo proporcionó un boceto. Tras conversaciones detalladas con nuestro consultor de proyectos, nuestro equipo de ingenieros .

Seis meses más tarde, este cliente envió un nuevo esquema y solicitó un diseño actualizado, que era totalmente diferente del original. Revisamos el diseño en consecuencia y, debido al menor coste de la mano de obra local, también cambiamos las paredes para que se construyeran con ladrillo local.

Por último, firmamos el contrato con una garantía de entrega de 30 días. El cliente solicitó el envío anticipado de los pernos de anclaje para los trabajos de cimentación, y nosotros, Hengguan (fabricante de almacenes de estructuras de acero), asumimos los gastos de entrega.

Por último, pero no por ello menos importante, el cliente se mostró muy satisfecho de firmar el contrato cuando los precios del acero eran muy bajos. También estamos muy contentos de establecer la cooperación con él y esperamos una colaboración más larga. Garantizaremos la calidad y el servicio, y mantendremos nuestros precios competitivos.
Si desea más información sobre este proyecto de almacén con estructura de acero y sobre nuestra empresa, no dude en ponerse en contacto con nosotros.