--Own home should always be the best.
Esta villa siguió el diseño del cliente para la fabricación. En el dibujo, es estándar de ASTM, pero este cliente acordó utilizar el estándar chino, substituyendo por especificaciones correspondientes o levemente más grandes.
| Filipinas villa de tres plantas --La casa propia debe ser siempre la mejor. | |||||
| País | Filipinas | Año | 2023 | ||
| Project Information | |||||
| Proyecto | Villa estructura de acero | Dimensión | 29.6m*12.74m*13.9m(Three floors) | Estándar de acero | Chino |
| Material | Acero en H | Pintar | Pintura epoxi | Purline | Purina C |
| Escalera | Incluye | Hueco del ascensor | Incluye | Ascensor | Incluye |
| Suelo | Placa de entarimado de 1 mm | Pared | Construido por el cliente | Contenedores | 5x40HQ |
Tiene tres plantas, divididas en tres unidades. Dado que este cliente tiene dos hijos, cada familia tiene una unidad. Esta es su propia casa, seguramente le prometimos la calidad y el asistente para construir la casa de sus sueños.



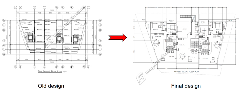
El envío es inminente, y el cliente solicitó un cambio en la estructura para hacer el suelo curvo. Dada la urgencia, ajustamos el calendario de producción para dar prioridad a la rectificación de este proyecto de viilla de estructura metálica y garantizar la entrega a tiempo.

También hemos adquirido dos ascensores residenciales para este cliente. Nuestro equipo profesional de compras evaluó rigurosamente las cualificaciones de los proveedores y la calidad de los productos para seleccionar un fabricante adecuado, garantizando al mismo tiempo que el precio siguiera siendo competitivo en el mercado.

Entrega

Durante la instalación, respondimos rápidamente a las preguntas del cliente. Este cliente está muy satisfecho con la calidad de nuestros productos y nuestro servicio, y de vez en cuando nos envía fotos del progreso de la instalación.
