< img height="1" width="1" style="display:none" src="https://www.facebook.com/tr?id=692944559725730&ev=PageView&noscript=1" />

Casa Espacial 02

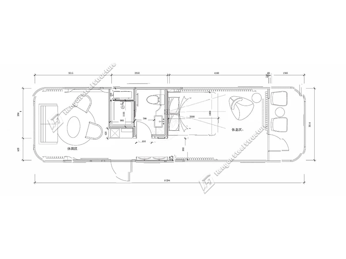
Casa Espacial 02

Tamaño: 11500mm3300mm*3300mm 38m²
2
2
2
2
2
2
2
2

·  Puede ser con baño, montado con varias unidades, con cocina, etc.

·  Todas las instalaciones se prefabrican en fábrica para usted, por lo que puede instalarse directamente después de conectar el agua y la electricidad.

·  Cargado por contenedor FR.

·  Vivienda, oficina, alojamiento,etc.

SOLICITAR PRESUPUESTO